- Главная
- Продукция
- Техническая информация, монтаж
- Буклеты
- Буклет 01 Зимние сады, оранжереи, веранды, атриумы, павильоны для бассейнов и ресторанов, зенитные фонари (PDF)
- Буклет 02 Террасы, навесы, веранды, беседки, павильоны, автонавесы (PDF)
- Буклет 03 Сучасні технології в садах TS Aluminium (PDF)
- Буклет 04 Зимние сады, террасы, вентиляция TS Aluminium (PDF)
- Буклет 05 Вентиляция и обогрев зимнего сада (PDF)
- Буклет 06 Нормы EnEV 2009 (PDF)
- Фотогалерея
- Сотрудничество
- Контакты



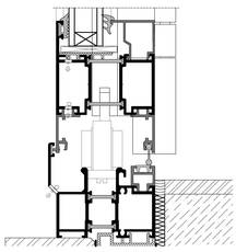
Порог рамный
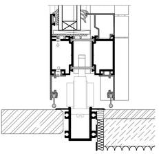
Порог средний
Порог утопленный (низкий)
Разрез рама-створка
Вертикальный разрез - соединения створок с дополнительным подвижным профилем створки.