Двери "гармошка" – теплая система серия F

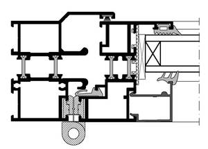
Толщина профиля 65 мм.

Двухконтурная система уплотнения гарантируют гидро-паро-ветро изоляцию. Не требуют консервации, фурнитура гарантируют высокую прочность. Створки шириной до 1м и высотой до 2,8 м.

Выбирая двери гармошка TS, Вы имеете возможность открывания и проветривания на собственный выбор. Это альтернатива подьемно-раздвижным дверям и дверям PSK. В зависимости от предназначения – предлагаем разные пороги.


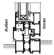
Порог рамный Порог средний
Порог низкий (утопленный) Разрез рама-створка
Вертикальный разрез - соединения створок с дополнитеьным профилем

 

Зимние сады, оранжереи, атриумы, павильоны, ресторанов, кафе, зенитные фонари

Террасы, навесы, веранды, беседки, павильоны, автонавесы.

Двери подъемно-раздвижные и двери "гармошка"

Козырьки на крыльцо